العربية
Contact Us
info@abukumail.com
About Us
Completed Projects
Multi Storey Building
Residential Villas
Ongoing Projects
View Project Updates
Al Khuwair
Qurum
Properties on Sale
Al Amrat
Bausher
Qurum
Overseas Projects
UAE
Overseas Projects
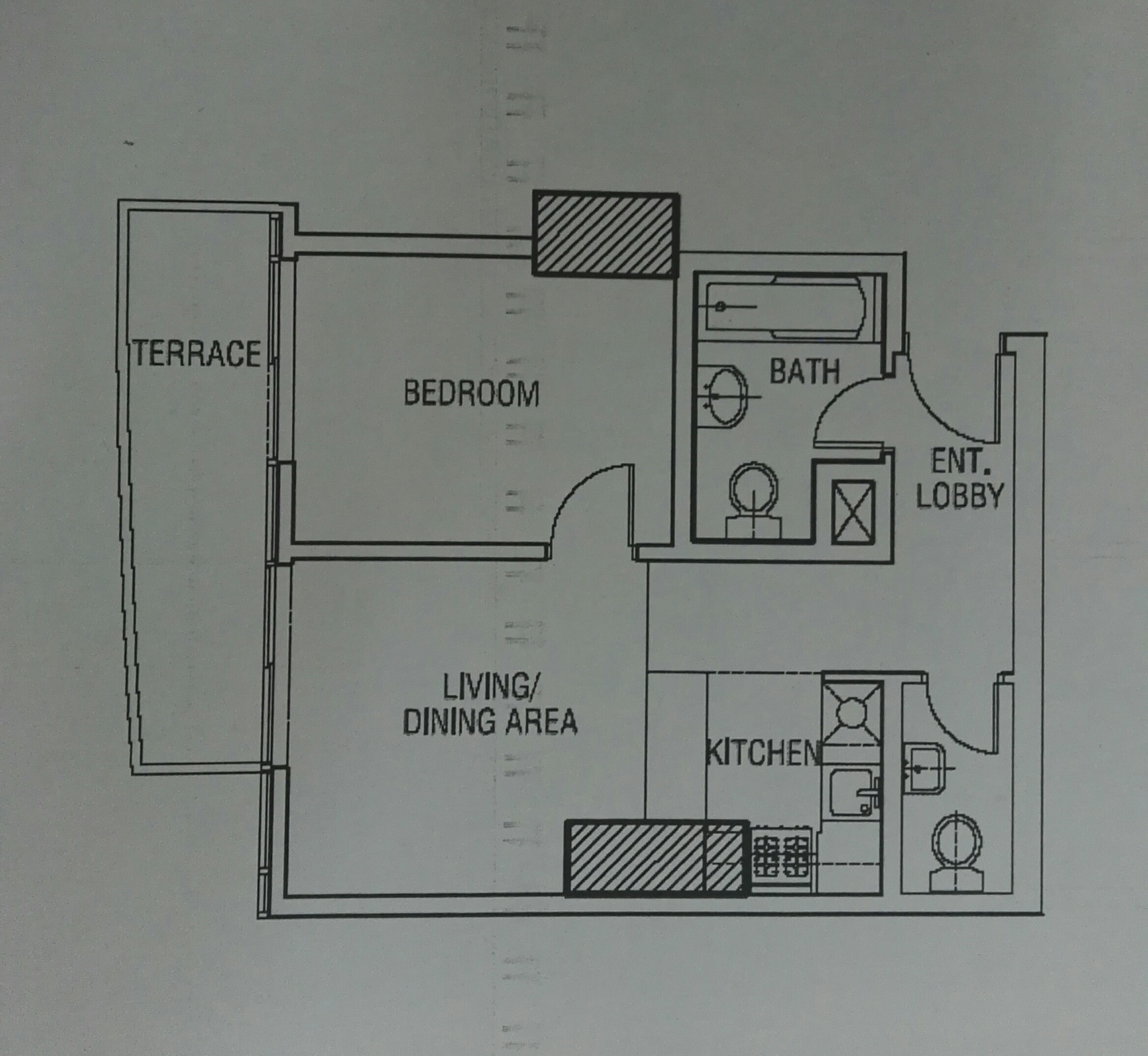
My Tower
Place: Dubai
1 bedroom apartment
Unit No : 3004
Area 732.24 Sqft
Go back